0
    Accord

Givors (69700)
Deux pièces neuf avec balcon et parking

Prix
du bien
145 000 €
réf : C16 Marly

01
Général

À seulement quelques encablures de Lyon, la commune de Givors s’impose comme une adresse de choix pour conjuguer dynamisme urbain et douceur de vivre. Idéalement positionnée entre Lyon, Saint-Étienne et Vienne, cette ville en plein essor séduit autant par son attractivité économique que par son environnement naturel privilégié, au confluent du Rhône et du Gier, entre monts et vallées.

C’est dans ce cadre en pleine transformation que s’inscrit la résidence Allées Marly, nichée dans le quartier du Canal, à quelques minutes à pied des berges du Rhône. Pensée comme un véritable havre de paix urbain, cette réalisation contemporaine se compose de trois bâtiments ouverts sur un cœur d’îlot paysager, entièrement piétonnier. Ici, la nature s’invite au quotidien, offrant un cadre de vie apaisé où l’on circule à pied ou à vélo, loin de l’agitation.

La résidence bénéficie d’un emplacement particulièrement stratégique : la gare SNCF de Givors-Canal se situe à seulement 450 mètres, permettant de rejoindre Lyon Part-Dieu en 16 minutes. Commerces de proximité, établissements scolaires, infrastructures sportives et culturelles, ainsi que les grands axes autoroutiers (A7, A47) sont accessibles très rapidement, facilitant le quotidien des résidents.

Les prestations ont été pensées pour allier confort et modernité : chauffage collectif urbain, volets roulants électriques, espaces de rangement optimisés, salle de bains équipée avec finitions soignées, sans oublier un espace extérieur pour chaque logement. La sécurité n’est pas en reste avec accès sécurisé, parking en sous-sol et équipements adaptés.

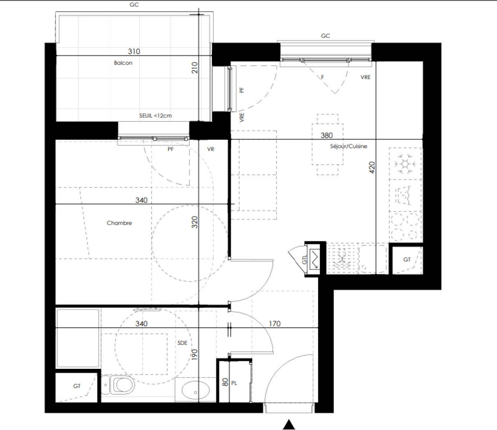
L’appartement proposé, un charmant 2 pièces de 36,10 m², illustre parfaitement l’esprit de la résidence : fonctionnel, lumineux et soigneusement agencé. Il se prolonge par un agréable balcon de 6,35 m², idéal pour savourer un café au soleil ou simplement profiter d’un moment de détente en extérieur.

Proposé au prix de 145 000 € honoraires charge vendeur, ce bien constitue une opportunité idéale pour un premier achat ou un investissement, d’autant plus qu’il est éligible au Prêt à Taux Zéro (PTZ) ainsi qu’à une TVA réduite à 5,5 %, sous conditions.

Livraison deuxième trimestre 2028.

Une adresse où modernité, nature et accessibilité composent un équilibre rare — à découvrir sans tarder.

Dossier complet sur demande. Autres lots disponibles du T2 au T5, nous consulter.
Bien neuf non soumis au DPE.
Bien soumis au statut de la copropriété.
Les informations sur les risques auxquels ce bien est exposé sont disponibles sur le site Géorisques : www.georisques.gouv.fr

02
Plus d'infos

  • Code postal
    69700
  • Surface habitable (m²)
    36,10 m²
  • Surface loi Carrez (m²)
    36,10 m²
  • Nombre de chambre(s)
    1
  • Nombre de pièces
    2
  • Etage
    1
  • Ascenseur
    OUI
  • Vue
    dégagée

03
Financier

  • Prix de vente
    145 000 €
  • Les honoraires d'agence seront intégralement à la charge du vendeur
     
  • Charges
    196 €

04
Plus de détails

  • Nb de salle d'eau
    1
  • Cuisine
    Américaine
  • Mode de chauffage
    Bois
  • Type de chauffage
    Radiateur
  • Format de chauffage
    TRAD_FORMAT_CHAUFF_URBAIN
  • Interphone
    OUI
  • Balcon
    OUI
  • Exposition
    Ouest
  • Année de construction
    2028

05
Copropriété

  • Copropriété
    OUI
  • Lot n°
    16
  • nombre de lots
    77
  • Quote Part annuelle des charges
    2 350 €
  • plan de sauvegarde
    NON
  • statut du syndic
    pas de procédure en cours

06
Bilan énergétique

DPE GES
Nos outils

Plus d'informations sur
le quartier

  • Commerces et santé
  • Loisirs
  • Ecoles
  • Transports
  • Pratique
Intéressé(e)
par ce bien